Menü
  • 5/54Medingen/001a.jpg
  • 5/54Medingen/01
  • 5/54Medingen/01a
  • 5/54Medingen/01b
  • 5/54Medingen/01c
  • 5/54Medingen/01f
  • 5/54Medingen/02
  • 5/54Medingen/03.jpg

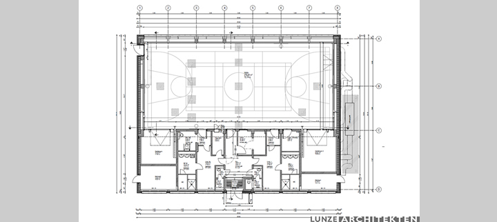
Sporthalle Grundschule Medingen „Sonnenblumenschule“

Bauherr: Gemeinde Ottendorf-Okrilla
Leistungsumfang: LPH 1-9 HOAI Gebäude und Freianlagen

Komplettumbau und energetische Sanierung einer DDR-Typen-Sporthalle vom Typ 124 2Mp mit Umgestaltung der angrenzenden Freianlagen

Leistungszeitraum: 2016-2019

© LUNZE ARCHITEKTEN 2025
KUNDENLOGIN
IMPRESSUM
DATENSCHUTZ

Unsere Website verwendet ausschließlich nicht zustimmungspflichtige,
technisch notwendige Cookies, um Ihnen ein angenehmeres Surfen zu ermöglichen.